Villa a schiera centrale in vendita

Gassino Torinese, Via guareschi
€ 175.000
4 locali 4 locali
110 Mq 110 Mq
2 bagni 2 bagni

Villa a schiera centrale in vendita

Gassino Torinese, Via guareschi

Descrizione annuncio

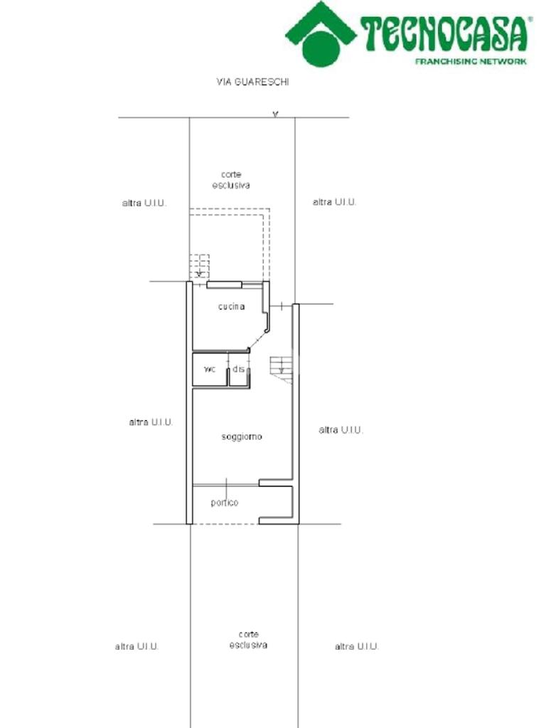
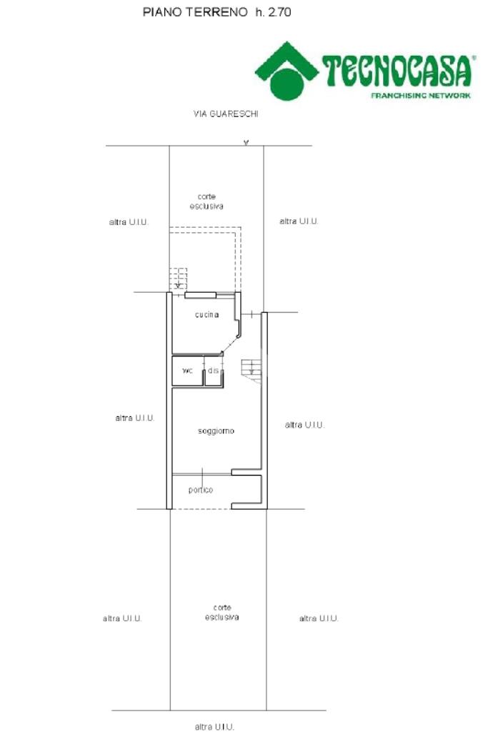
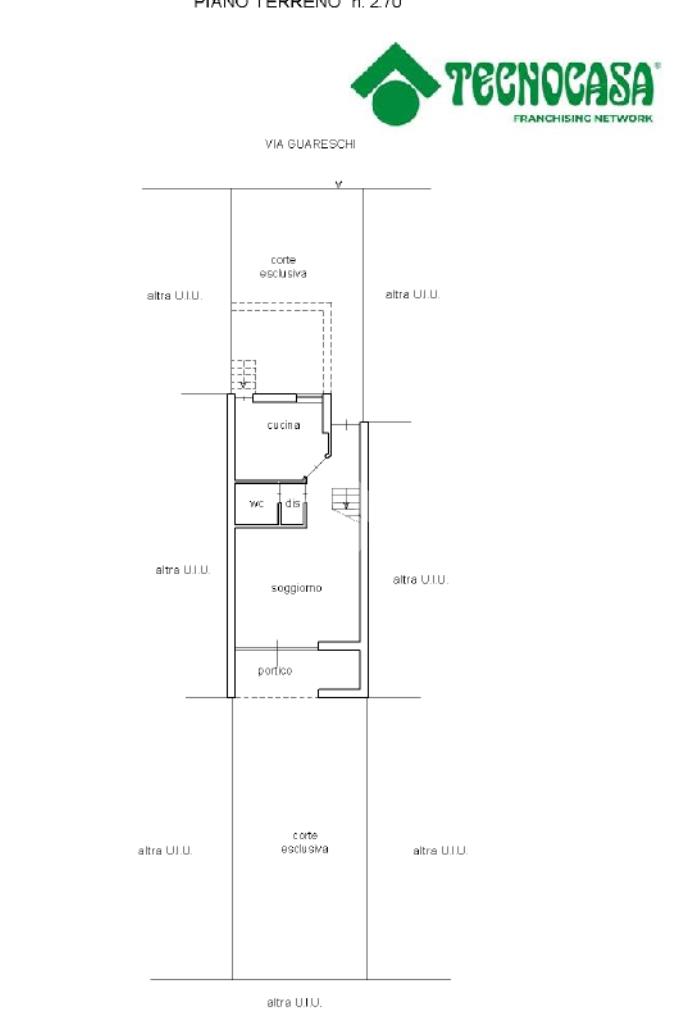
In zona residenziale ma immersa nel verde, villetta a schiera libera su due lati con giardino e portico.

L'unità abitativa è stata realizzata alla fine degli anni '80 e internamente si presenta abitabile fin da subito.

L'ingresso dell'abitazione avviene tramite un cortile pertinenziale pavimentato e varcato il portoncino si accede ad un disimpegno che divide la cucina dal soggiorno. Quest'ultimo ambiente è caratterizzato da una vetrata scorrevole che ci conduce ad un portico e al giardino di pertinenza. Il piano viene completato dalla presenza di un bagno completo di doccia e zona lavanderia.

Il piano primo è dedicato alla zona notte composta da una camera da letto matrimoniale con sfogo su un balcone, un ulteriore camera e un bagno finestrato con doccia.

La soluzione viene completata dalla presenza di un sottotetto non abitabile collegato internamente da una scala interna e al piano interrato troviamo una comoda cantina.

I serramenti sono tutti in legno con il doppio vetro dotati di zanzariere mentre la caldaia a condensazione è stata sostituita nel 2023.

Soluzione ideale per chi cerca la tranquillità, senza rinunciare alla comodità di raggiungere facilmente supermercati, farmacie, fermate dei pulman, scuole e il centro storico di Gassino Torinese.

Lo Studio Gassinese affiliato Tecnocasa offre gratuitamente e senza impegno una valutazione del vostro immobile. Il cliente viene seguito a 360° nelle fasi della vendita o locazione, nella gestione dei mutui con la collaborazione di professioni della Kiron.


PER AMPLIAMENTO ORGANICO siamo alla ricerca di personale. Poteto inviarci il vostro curriculum con foto al nostro indirizzo mail: tohd2



Per ulteriori informazioni ci trovate in Via Circonvallazione 19, Gassino Torinese. Telefono:011.9813066 -Whatsapp:345.9489285

Mostra tutto

Nelle vicinanze

Trasporto pubblico Trasporto pubblico
Gassino (v. Bussolino 65)
Gassino (v. Bussolino 65)
380 m
Bussolino (Carrozzeria)
Bussolino (Carrozzeria)
400 m
Ricariche auto elettriche Ricariche auto elettriche
San Raffaele Cimena Italia | EnelX
2,5 Km
Scuole Scuole
Scuola Primaria L. Borione
990 m
Scuola Primaria "M.K.Gandhi"
1,2 Km
Scuola secondaria "Enrico Fermi"
1,5 Km
Scuola elementare "Renzo Pezzani"
1,7 Km
Farmacia Farmacia
Farmacia
930 m
Supermercati Supermercati
Penny Market
1,4 Km
Borello Supermercati
1,5 Km
Bar Bar
Caffetteria Papillon
1,1 Km
Ristoranti Ristoranti
Aprà
2,0 Km
Mostra tutto

Caratteristiche

Rif.:
61105610
Piano:
Su più livelli di 2
Totale piani:
2
Balconi:
1
Camere da letto:
2
Arredamento:
Assente
Mostra tutto
Prezzo Prezzo
€ 175.000
Rata mutuo Rata mutuo
€ 802 / mese
Spese annue Spese annue
€ 600
Proponi il tuo prezzoProponi il tuo prezzo
Immobile valutato con TecnoValore

Classe Energetica

G
G
G
G
G
G
G
G
G
EP globale non rinnovabile:
338.17 kW h/m² anno
EP globale rinnovabile:
98.17 kW h/m² anno
EP invernale del fabbricato:
EP estiva del fabbricato:
Anno di costruzione:
1986
Riscaldamento:
Autonomo
Tipo impianto:
A radiatori
Tipo alimentazione:
Metano

Ti interessa visionare l'immobile?

Fissa un appuntamento  Fissa un appuntamento

Richiedi informazioni

* Questi campi sono obbligatori

Calcola il tuo mutuo

Semplice e senza impegno
Anticipo

( % )
Mutuo

( % )

pochi semplici passi

inserisci i tuoi dati
Questionario completato
Grazie per aver richiesto un appuntamento senza impegno con un nostro Consulente del Credito e Assicurativo.

Hai inserito correttamente tutti i dati necessari e a breve riceverai una e-mail con un link da convalidare per inviare i tuoi dati.
Affiliato
Studio Gassinese Snc
Via Circonvallazione, 19 10090 Gassino Torinese (TO)

Il nostro staff


  • Simone Pivetta
    Affiliato

  • Alessia Giordano
    Affiliata

  • Carmen Cavaleri
    Coordinatrice

  • Francesca Del Duca
    Collaboratrice

  • Francesco Giordano
    Responsabile
Via Circonvallazione, 19 10090 Gassino Torinese (TO)
Zona: Gassino Torinese-Sciolze-Bardassano
Mostra su mappa
Orari: DAL LUNEDI' AL VENERDI' ORE 9:00/12:30 - 14:30/20:00 IL SABATO 0RE 9:00/12:30 - 14:30/19.00
Affiliato
Studio Gassinese Snc
Via Circonvallazione, 19 10090 Gassino Torinese (TO)

2025 Tecnocasa Franchising S.p.A. - P. IVA 08365160152 - Via Monte Bianco 60/A 20089 Rozzano (MI). Ogni agenzia ha un proprio titolare ed è autonoma. Privacy policy | Policy utilizzo | Cookie policy